BENVENUTI

logo aragona senza testo

CA

Appartamento

Via Federico D´Aragona 16

Lecce 73100

Per info e prenotazioni

reception@ca-apartment.it

+39 349 1110504

The staircase

CIN: IT075035C200115912


instagram
phone
whatsapp

BENVENUTI

Casa Aragona

Nel Cuore di Lecce

Un appartamento storico al piano nobile di un palazzo del seicento, rifiorisce grazie ad un intervento di ristrutturazione attento e rispettoso della sua anima originaria.

L’impianto architettonico primitivo é stato recuperato preservando le pareti affrescate e riportando alla luce le tracce delle diverse stratificazioni che il tempo ha depositato, rendendo ogni ambiente una narrazione viva della sua storia.
Gli interni accolgono una collezione eclettica di arredi originali, che spaziano con naturalezza dal liberty agli anni Settanta, arricchiti da discreti accenti di design contemporaneo, da lavori di artgianato locale e da suggestioni provenienti da altre culture. Il risultato è un equilibrio armonico tra passato e presente, dove ogni dettaglio contribuisce a creare un’atmosfera unica.
Qui troverete autenticità e calore.

Living

Dopo l´ingresso luminoso ad accogliervi é un living ampio e articolato, con zona sofá dedicata al relax, zona camino dal fascino intimo e sala da pranzo armoniosamente integrata.

Living roomThe fireplaceThe dining room
    The kitchenThe hand washerThe kitchen

    Cucina

    La cucina é tradizionale dal carattere autentico, con pitture stratificate che raccontano il tempo. Dotata di 5 fuochi, 2 forni, un ampio tavolo in marmo, frigo doppio, completa di tutti gli accessori è un vero laboratorio creativo dedicato al food.​​

    Bedroom with frescoJapanese BedroomeyJlbiI6IiIsIml0IjoiNTC0cyBiZWRyb29tIn0=casaaragona_172.jpegcasaaragona_161.jpegcasaaragona_170.jpegcasaaragona_141.jpegcasaaragona_132.jpegcasaaragona_122.jpegcasaaragona_118.jpeg

    Due Camere e

    Una Segreta

    La zona notte si compone di tre camere, ognuna con un’identità distinta.

    La prima, impreziosita da affreschi, dispone di bagno en suite con arredi realizzati da artigiani locali. La seconda, dal gusto anni ’50, offre un’atmosfera intima e raccolta, anch’essa con bagno privato.

    Dalla chiostrina, attraverso una scala, si accede infine a una terza camera inaspettata: uno spazio ispirato al Giappone, dove tatami, shoji, noren e kakejiku originali, insieme ad arredi su misura, ricreano fedelmente l’essenza dell’architettura giapponese, con bagno dedicato.

    The little cloisteratr_5807.jpeg

    Chiostrina

    Una chiostrina all’aperto nel cuore della casa, rifugio intimo e silenzioso. Tra agrumi profumati e una luce morbida e avvolgente, è il luogo ideale per concedersi un caffè e assaporare momenti di quiete.

    The studioAncient bookscasaaragona_108.jpeg

    Studio

    Uno studio affacciato sulla piazzetta, vivace e luminoso, animato dai suoni della vita cittadina. Uno spazio attrezzato dove sfogliare libri antichi, un vero tesoro ritrovato nel sottotetto. I libri spaziano dalla religione alla medicina, dal diritto all’agronomia e alla farmacia, includendo anche romanzi, lettere antiche e quotidiani, testimonianza delle generazioni che hanno abitato questi spazi.

    Un ambiente in cui immergersi nella lettura e lasciarsi ispirare.

    The rooftop night viewThe rooftop day view

    Rooftop

    ll rooftop si apre come una terrazza privilegiata nel cuore di Lecce, incastonata tra le curve eleganti della Chiesa di San Matteo e la discreta armonia della Chiesa di Santa Chiara. Ma è lo sfondo a rendere la scena davvero unica: la sagoma maestosa del Duomo di Lecce domina l’orizzonte con la sua presenza scenografica. Quando cala la sera, le luci soffuse del rooftop si accendono e, insieme all’illuminazione della piazza e del Duomo sullo sfondo, creano un gioco di contrasti tra intimità e monumentalità. È un punto di vista raro: sospeso tra la vita privata della casa e la grandiosità della città.

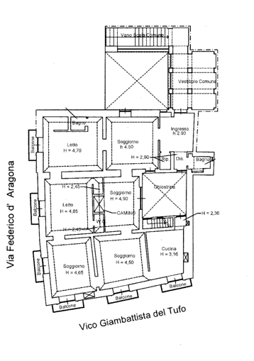
    planimetria primo piano

    Descrizione dell'Immobile

    La casa è finemente strutturata e si compone di ampi spazi luminosi, distribuiti come segue:

    3 Camere da letto, ciascuna dotata di bagno indipendente;

    Living room (soggiorno);

    Sala camino;

    Sala da pranzo;

    Cucina abitabile;

    Studio privato;

    Bagno di servizio;

    Terrazza panoramica.

     

    Un ringraziamento speciale a Gramma Office per il supporto creativo e tecnico.


    instagram